Городской информационно-развлекательный портал города Лыткарино
  РЕГИСТРАЦИЯ
Забыли пароль?

Главная > Услуги > Помощь по дому, ремонт

200 250 руб.

Перепланировка/дизайн квартиры_проект частного жилья_генплан дачного участка

 
Автор: AnnaFevral
На сайте с 2016 года
Объявлений: 8 (2)

Добавлено 10.04.2019
Актуально до 12.02.2026

Просмотров: 965

Сообщить о нарушениях в этом объявлении Сообщить о спаме в этом объявлении
Работники из: России
Проф. образование: Есть
Договор: Возможно


Здравствуйте!
Предлагаю услугу дизайнера и архитектора. С моим портфолио можно ознакомиться здесь: Ссылка здесь...
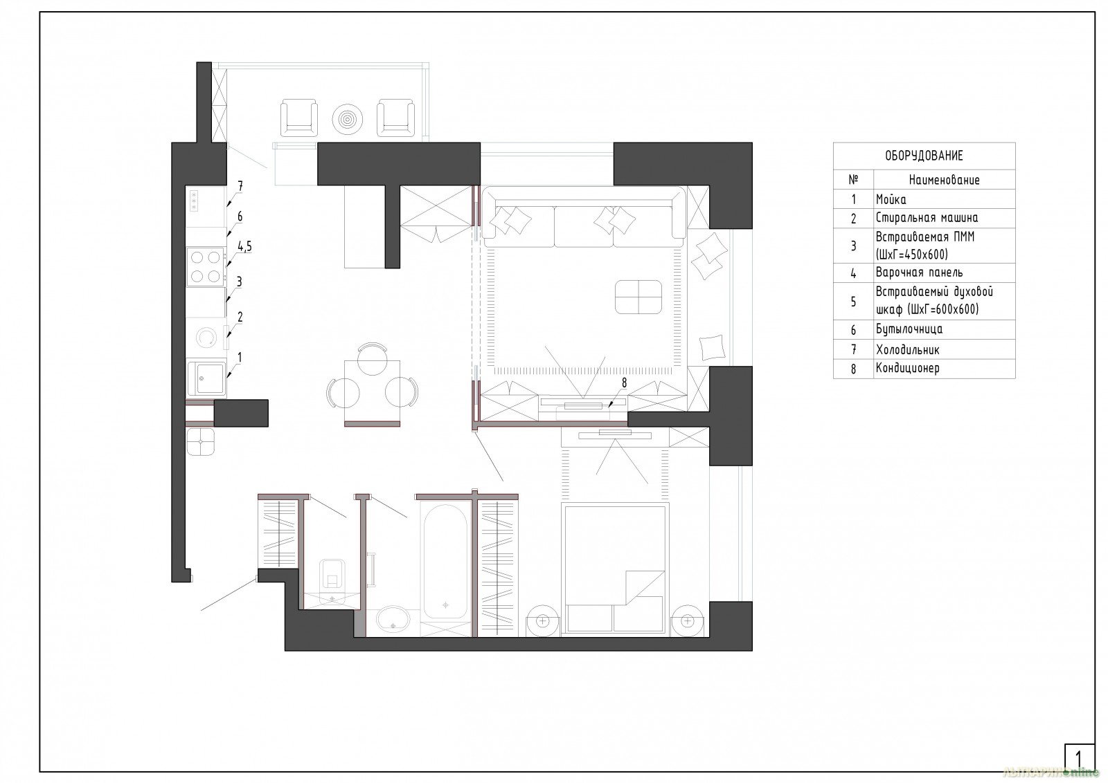
Проект дизайна квартиры может быть полным или же в составе чертежей планировки, чего может быть достаточно. В последнем случае на руки Вы получите план монтажа с указанием объёмов материалов; план расстановки мебели и оборудования с ключевыми пояснениями содержания планировки; план расстановки мебели и оборудования с их габаритными размерами, размерами проходов и привязками к стенам. Стоимость такого комплекта - от 250 руб./кв.м. (зависит от сложности решений).
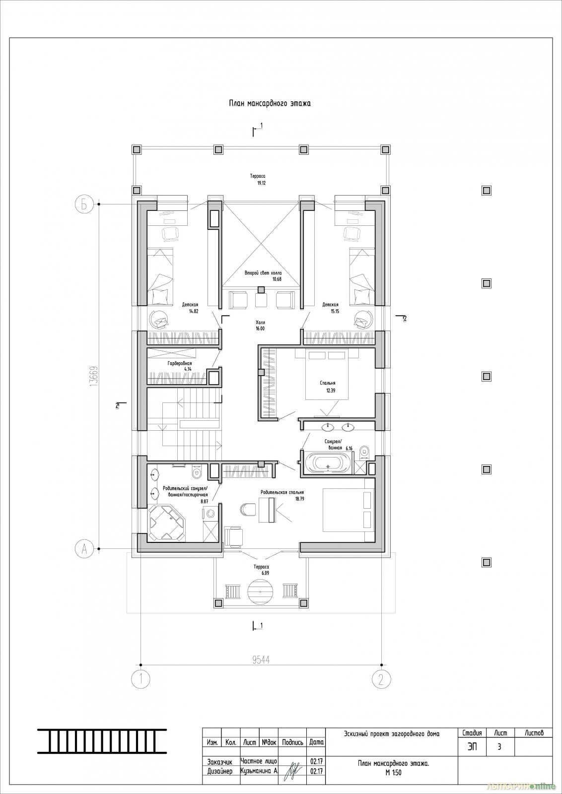
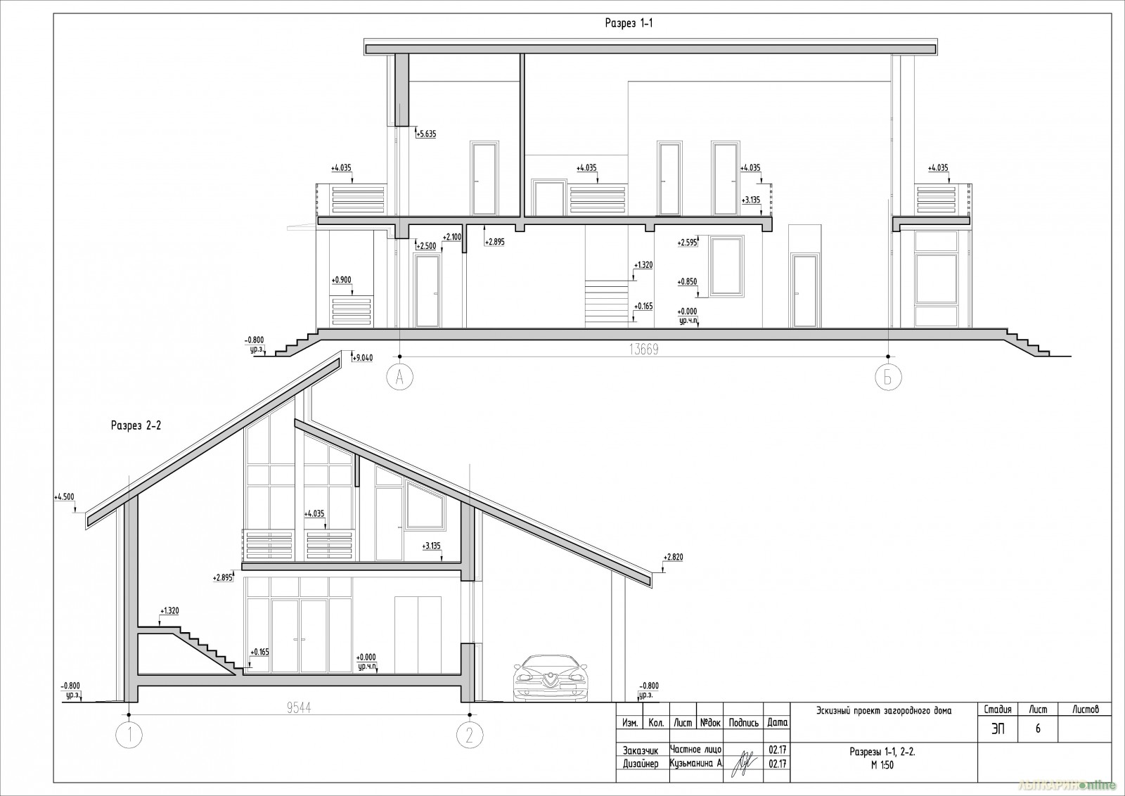
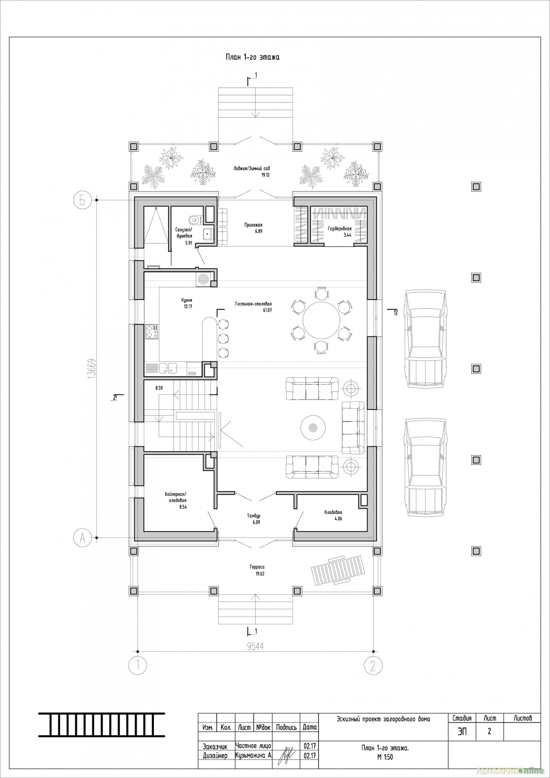
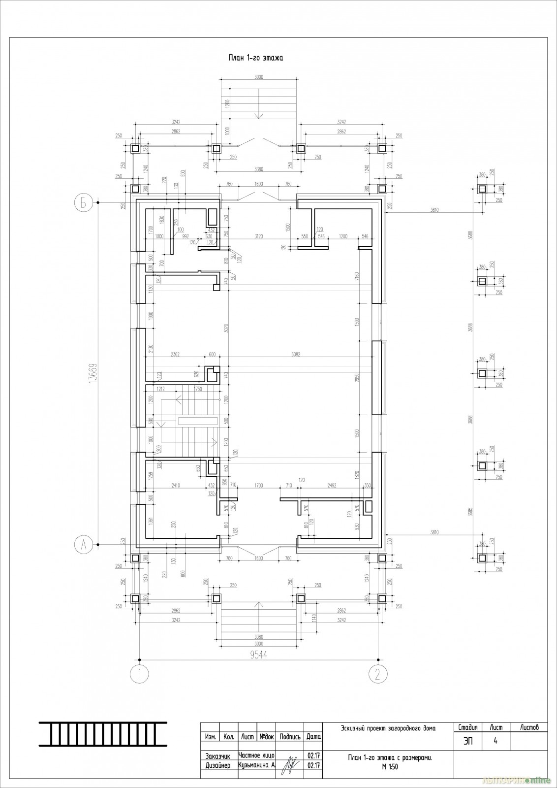
Также могу предложить услугу эскизного проектирования частного жилья, организации дачных участков с доп. постройками. Состав проекта стоимостью от 400 руб./кв.м. (цена проектирования дома) будет состоять из:
- поэтажных планов с экспликацией помещений, расстановкой мебели и оборудования;
- поэтажных планов возведения перегородок;
- ключевые разрезы;
- фасады в графике с указанием отметок высот;
- цветовое решение фасадов с применением конкретных материалов.
- план кровли
Ниже примеры планировок квартир и Эскизный проект частного дома.

Контакты:
email: annifevral87@mail.ru
номер тел. в данных ниже



Фотографии:


Контактная информация:

Адрес: Лыткарино, Колхозная улица, 6к1 (примерно)
Имя: Анна
Телефон: 8-909-909-1691
 
Добавить объявление в раздел "Помощь по дому, ремонт"   

Комментарии:

 
Только зарегистрированные пользователи могут оставлять комментарии.
 
    

Подпишись!

Директ

Яндекс.Метрика
Контакты | Связаться с администрацией сайта | Ответы на часто задаваемые вопросы | Реклама на сайте